|
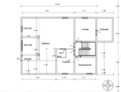
Keller Wellnessbereich Dient zum Ausspannen, dort befindet sich eine Kneippstrecke und Tauchbecken, eine großzügige Dusche,weiters sind auch eine Sauna und ein Römisches Dampfbad geplant Technik In diesem Raum befindet sich die Heizung, der Gas-Hausanschluss, der Wasseranschluss, der Speicher der Solaranlage und die Warmwasserbereitung Waschküche Hier ist die Waschmaschine und die Möglichkeit zum Aufhängen der Wäsche. Vorräte Der Vorratsraum ist gegenüber den anderen Kellerbereichen innen gedämmt, hier werden die normalen Lebensmittelvorräte aufbewahrt. Erdkeller Ist um 50cm abgesenkt, leider war aufgrund der Bodenstruktur kein richtiger Erdkeller moeglich. Eine gute Alternative wurde gefunden in dem im Boden eine Lehmschicht von 10 cm eingebracht wird, dann 5 cm Kalksplit und dann eine Ziegelschicht. Die Wände werden auch mit Ziegeln vorgemauert um eine gute Raumfeuchtigkeit zu erhalten. |
![]() Keller |
|
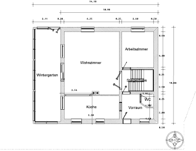
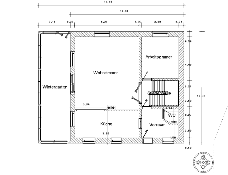
Erdgeschoss Vorraum Hier ist auch der Eingang und das WC. Küche und Essbereich Wir wollten eine offen gestaltete Küche um eine bessere Kommunikation zu ermöglichen. Wohnzimmer Beim Kamin wird sich einmal der Kachelofen befinden. Wintergarten Dient um den Gewinn an passiver Sonnenenergie zu steigern und er wird auch deshalb nicht beheizt. Um im Sommer eine Überhitzung zu verhindern wurde auf eine komplette Verglasung des Dachbereichs verzichtet. Arbeitszimmer Hier werden einige Computer stehen. |
![]() Erdgeschoss |
|
Obergeschoss Vorraum Hier befindet sich auch die Auszugstreppe zum Dachboden Bad Mit 2 Waschbecken, Dusche, Badewanne, Bidet, WC Reserve Dieser Raum wird vorläufig als Abstellraum verwendet. Daniela Danielas Zimmer hat einen sehr schönen Ausblick in den Wintergarten. Schlafzimmer mit Schrankraum Um vieles unterzubringen und möglichst wenig Staub im eigentlichen Schlafbereich zu haben, wollten wir einen eigenen Schrankraum. |
![]() Obergeschoss |